Renovation Update

Renovated Classrooms
Furniture
We are going to work towards having the same tables and chairs in each room (size and condition).
Due to the extreme heat forecast on Tuesday, we will be moving chairs from the Junior Campus Hall from 7:30am. Please let me know if you are available to help.
Internet, tvs and phones
Sue and Simeon will be working on the IT in the renovated classrooms.
If by Wednesday lunchtime, you have a devise that is not working, please contact Simeon.
Yard duty
Teachers are to pre teach in class and when on Yard Duty, to ensure that students do not:
- walk on, run through, jump over the unplanted garden beds
- leave paper/rubbish outside
- swing on nor sit on the handrails
Temporary Toilet Block
Additional toilets will be situated close to the existing toilets near the hall on the Basketball Court to replace the old toilets in the historic building. This toilet block will have individual cubicles with washbasins. We are pleased that these toilets are going to be able to be plumbed directly into the sewer to avoid overflows which occurred last time we had temporary toilets.
Yard duty: ensure that students do not play or hang around the gap between the doors (facing the Hall) and the Hall.
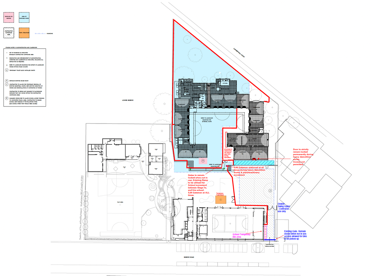
Stage B
We are very excited to be commencing Stage B! While it is the most challenging stage of the build we are confident with such an amazing architects and builder, that all will go well.
The amount of space that we can access has been reduced due to the fact that the builders cannot remove rubble nor bring in materials from Camberwell Road. They therefore need to carry everything up onto the Basketball Court and out to Reserve Road.
The map below shows the area that the students and teachers will access and how they will move between their classrooms and the play area.
Changes:
- The Blue Area is no longer part of our play area
- The Secret Garden is still unavailable
- Students will use the ramp to access the play space from their classrooms
A traffic management person from the construction company will supervise the gate that provides access from the newly renovated classrooms to the Basketball Court throughout class times.
This will ensure that students can access toilets from the Blue Area at all times throughout the school day.
- Emilie's class will enter and exit via Matt's door.









